2 Portobello Way

(Phase 2)

£263,895.00

Available to view NOW

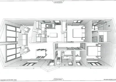
Model: Dante (Exclusive to Gateforth Park)

Size: 44×20

Bedrooms: 2 Double

Notes:

  • L-Shaped Lounge and Diner
  • Kitchen with Island
  • Walk-in wardrobe to Master Bedroom
  • Ensuite
  • Council Tax Estimate Band A

Gallery: